EN
|
FR
|
NL
Plannen en 360°
Fotogalerij
Locatie
Help
1
0
-1
ERA Mijn-immo
Kantoor Beringen
Koolmijnlaan 34
3580 Beringen
011-42 33 80
011 42 44 38
mijn-immo@era.be
www.era.be/mijn-immo
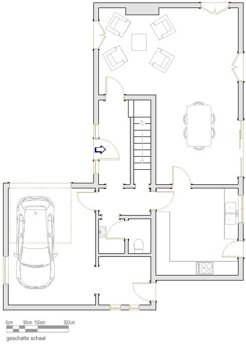
eetkamer
woonkamer
keuken
inkom
garage
Gelijkvloers