EN
|
FR
|
NL
Plans et vues
Photogalerie
Situation
Aide
1
0
-1
Era Immpuls
Agence Overijse
Stationsplein 7A
3090 Overijse
02-688.06.68
immpuls@era.be
www.era.be/immpuls/
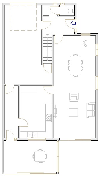
veranda
cuisine
salle à manger
séjour
entrée
garage
Rez de chaussée