EN
|
FR
|
NL
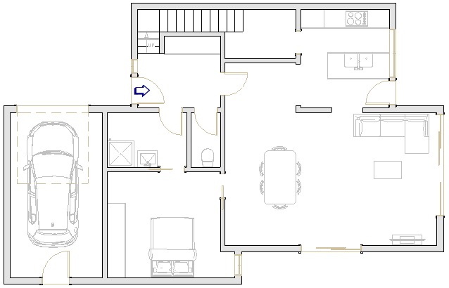
Plans and 360°
Photo Gallery
Location
Help
1
0
Limburgse Wooncentrale
Hasselt Agency
Kramerslaan 13 b 0.2
3500 Hasselt
011 222 400
011 222 420
verkoop@lwc.be
www.lwc.be
entrance
dining room
kitchen
living room
bedroom
bathroom
Ground Floor